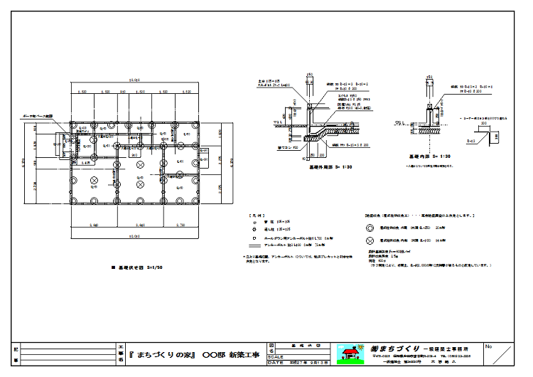
基礎伏せ図

住宅の基礎の配置や形状を表示した平面図のこと。
住宅では、ベタ基礎、布基礎、独立基礎や土間コンクリート部分、、アンカーボルトやホールダウン金物、人通口等の位置などを記載します。
鉄筋の太さやピッチなどの配筋と基礎の断面がわかる垂直断面やコンクリートの設計強度も表記されます。住宅瑕疵保険などの申請にも添付します。縮尺は通常1/100、1/50を用います。
右は1/100で作成した基礎伏せ図の例です。
2016年02月16日 15:43
愛知県半田市|新築・増築・リフォーム・耐震改修工事 設計・施工|TEL 0569-23-3335
まちづくり トップページ ≫ 設計図 ≫ 基礎伏せ図 ≫
住宅の基礎の配置や形状を表示した平面図のこと。
住宅では、ベタ基礎、布基礎、独立基礎や土間コンクリート部分、、アンカーボルトやホールダウン金物、人通口等の位置などを記載します。
鉄筋の太さやピッチなどの配筋と基礎の断面がわかる垂直断面やコンクリートの設計強度も表記されます。住宅瑕疵保険などの申請にも添付します。縮尺は通常1/100、1/50を用います。
右は1/100で作成した基礎伏せ図の例です。
株式会社まちづくりモバイルサイトへはこちらのQRコードからどうぞ!
2025年 10月 | ||||||
日 | 月 | 火 | 水 | 木 | 金 | 土 |
1 | 2 | 3 | 4 | |||
5 | 6 | 7 | 8 | 9 | 10 | 11 |
12 | 13 | 14 | 15 | 16 | 17 | 18 |
19 | 20 | 21 | 22 | 23 | 24 | 25 |
26 | 27 | 28 | 29 | 30 | 31 |
2025年 11月 | ||||||
日 | 月 | 火 | 水 | 木 | 金 | 土 |
1 | ||||||
2 | 3 | 4 | 5 | 6 | 7 | 8 |
9 | 10 | 11 | 12 | 13 | 14 | 15 |
16 | 17 | 18 | 19 | 20 | 21 | 22 |
23 | 24 | 25 | 26 | 27 | 28 | 29 |
30 |
2025年 12月 | ||||||
日 | 月 | 火 | 水 | 木 | 金 | 土 |
1 | 2 | 3 | 4 | 5 | 6 | |
7 | 8 | 9 | 10 | 11 | 12 | 13 |
14 | 15 | 16 | 17 | 18 | 19 | 20 |
21 | 22 | 23 | 24 | 25 | 26 | 27 |
28 | 29 | 30 | 31 |