立面図

住宅を横から見た投影図をです。姿図ともいい、建物の外観デザインを表します。
通常、隣家と接地しているなど、特に表記するひつようのない場合以外は、 東西南北の四面の立面図を作成します。住宅の高さや幅、屋根の勾配、軒の出、地盤面との関係などが記載され、 北側斜線、道路斜線や採光などのチェックも、立面図で行われます。立面図の縮尺には一般的には1/100を用います。
右の図は1/100で作成した立面図の例です。
2016年02月19日 15:14
愛知県半田市|新築・増築・リフォーム・耐震改修工事 設計・施工|TEL 0569-23-3335
まちづくり トップページ ≫ 設計図 ≫ 立面図 ≫
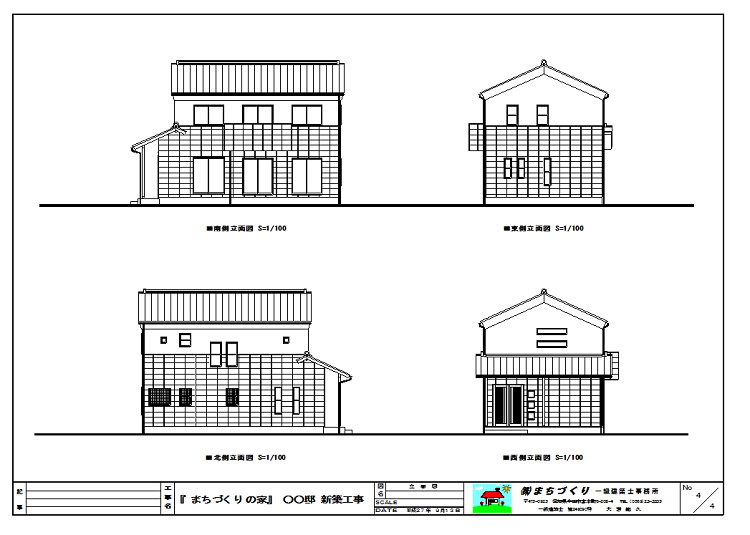
住宅を横から見た投影図をです。姿図ともいい、建物の外観デザインを表します。
通常、隣家と接地しているなど、特に表記するひつようのない場合以外は、 東西南北の四面の立面図を作成します。住宅の高さや幅、屋根の勾配、軒の出、地盤面との関係などが記載され、 北側斜線、道路斜線や採光などのチェックも、立面図で行われます。立面図の縮尺には一般的には1/100を用います。
右の図は1/100で作成した立面図の例です。
株式会社まちづくりモバイルサイトへはこちらのQRコードからどうぞ!
2025年 10月 | ||||||
日 | 月 | 火 | 水 | 木 | 金 | 土 |
1 | 2 | 3 | 4 | |||
5 | 6 | 7 | 8 | 9 | 10 | 11 |
12 | 13 | 14 | 15 | 16 | 17 | 18 |
19 | 20 | 21 | 22 | 23 | 24 | 25 |
26 | 27 | 28 | 29 | 30 | 31 |
2025年 11月 | ||||||
日 | 月 | 火 | 水 | 木 | 金 | 土 |
1 | ||||||
2 | 3 | 4 | 5 | 6 | 7 | 8 |
9 | 10 | 11 | 12 | 13 | 14 | 15 |
16 | 17 | 18 | 19 | 20 | 21 | 22 |
23 | 24 | 25 | 26 | 27 | 28 | 29 |
30 |
2025年 12月 | ||||||
日 | 月 | 火 | 水 | 木 | 金 | 土 |
1 | 2 | 3 | 4 | 5 | 6 | |
7 | 8 | 9 | 10 | 11 | 12 | 13 |
14 | 15 | 16 | 17 | 18 | 19 | 20 |
21 | 22 | 23 | 24 | 25 | 26 | 27 |
28 | 29 | 30 | 31 |