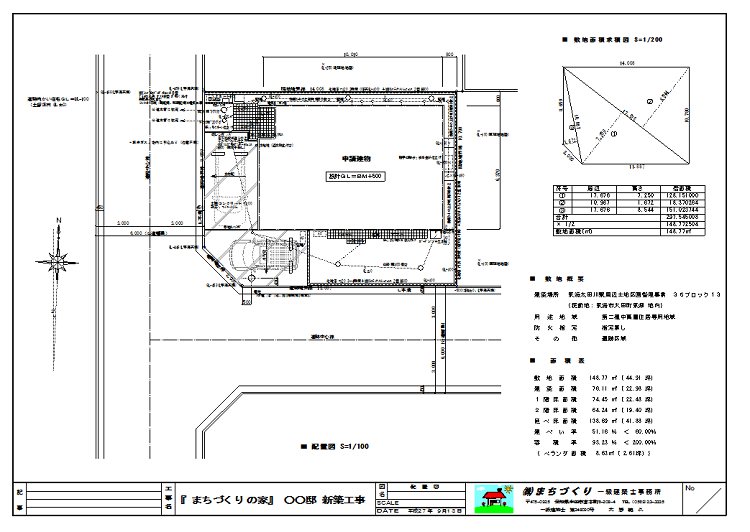
配置図

建物の配置や敷地との位置関係を示した図面です。
配置図は重要な設計図面の一つで、 建物と敷地の他に、道路の位置、幅員、隣地境界線、道路境界線、敷地内の高低差、敷地と道路の高低差、真北方向なども配置図に示されます。
これにより敷地と建物の配置はもちろん、 人や車などの動線も分かるようになっており配置図は設計をする上で最も基本的な図面です。
縮尺は一般的に1/100、1/200程度で、庭、車庫、門、植栽などの外構計画や排水図を兼務して表示する場合もあります。
右は1/100で作成した配置図の例です。
2016年02月21日 15:03